Eladó Családi ház Budakeszi - Makkosi

253 m2Alapterület 5 + 1 Szoba
244 000 000 Ft Ár
393569Azonosító
További adatok

800 m2 Telek

Panoráma Kilátás

Jó állapotú Állapot

Tégla Szerkezet

33 m2 Erkély/terasz

Gáz (cirkó) Fűtés

Dupla komfort Komfort

Saját garázs Parkolás

Közepes Tömegközlekedés

Amerikai konyhás

Van Kertkapcsolat

2000 Építés éve

Hitelkalkuláció – a részletekért kattintson valamelyik bank logójára!

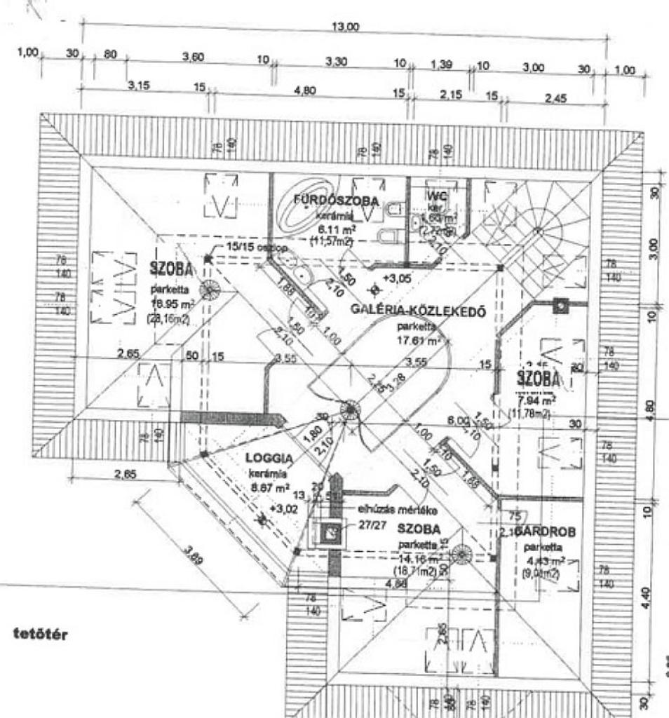
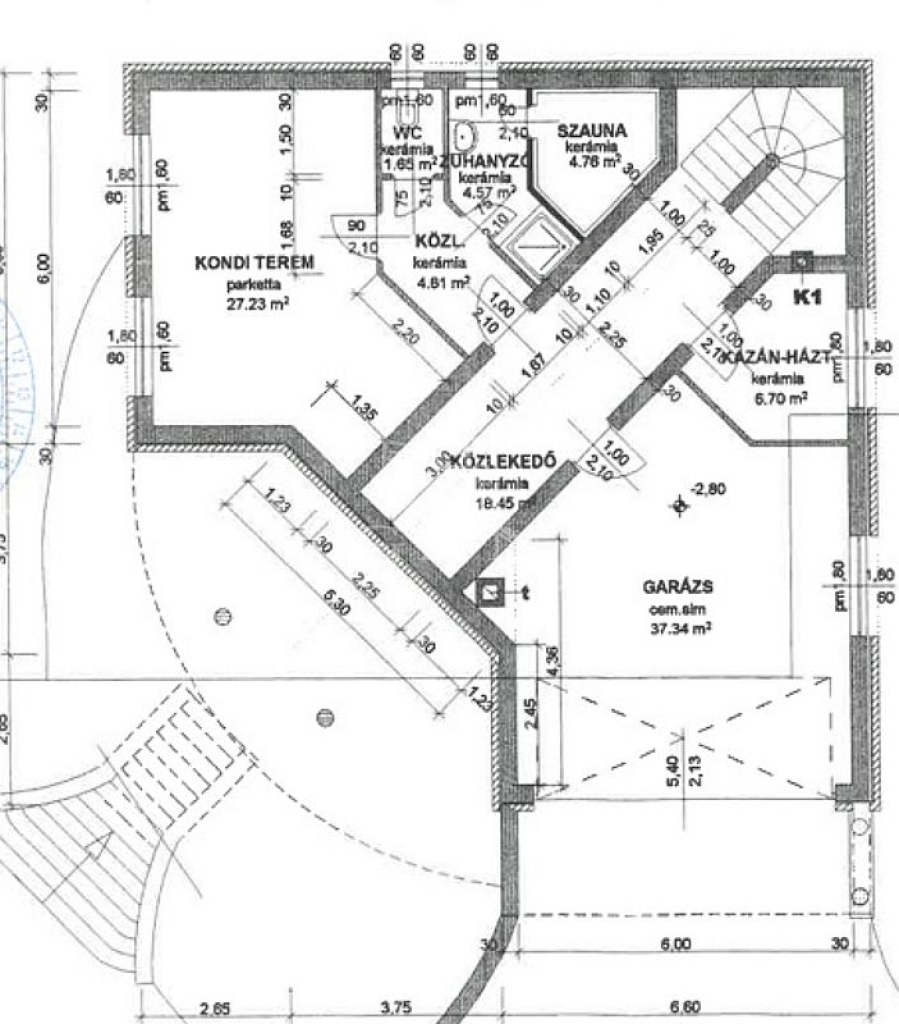
Budakeszi hegyvidéki részén, Makkosmárián, 880 nm-es, DNy-i tájolású, telken, három szintes, tágas terekkel rendelkező, galériás, 5+1 szobás, garázsos, 2000-ben épült családi ház eladó.

A ház jól megközelíthető, aszfaltozott utcában található, a városközponttól kb. 1 km-re.

Elrendezés szintenként:

Szuterén és pinceszint: kétállásos fűtött garázs (37 nm), szauna, tágas fitnessz-szoba (27 nm) és tároló
Földszint: nappali amerikai konyhával (44 nm) és teraszkapcsolattal, dolgozószoba (26 nm) , fürdő (11 nm) , WC, háztartási helyiség
Tetőtér: két háló (br. 28 és 18 nm), egy félszoba, gardrób, fürdő, külön WC, panorámás erkély

Fűtése: gázkazán, padlófűtés és radiátorok, klíma, elektromos redőnyök, riasztó, automata öntözőrendszer, elektromos kapu.

Korának megfelelő, jó műszaki állapotú ingatlan, rövid határidővel költözhető.
Nyári Katalin

Nyári Katalin

Hívjon bizalommal

+36-30-720-Mutasd!

További hirdetéseim

Ingatlaniroda
GDN Ingatlanhálózat - KANKALIN Ingatlaniroda
+36-30-720-3622

Küldjön üzenetet

Visszahívást kérek

Hasonló ingatlanok