ELADÓ FELÚJÍTOTT LAKÁS BUDAPEST BELVÁROSÁBAN, V. KERÜLET IRÁNYI UTCA!
68 nm, 3 szoba, 179 MFt.
A felújított 3 szobás lakás az Erzsébet híd pesti hídfőjénél, a Váci utca és az Irányi utca közelében található. Kiváló infrastruktúra és remek közlekedés jellemző a környékre. Pár perces sétával minden elérhető ami a mindennapok kényelméhez kell, karnyújtásra van a Duna-part, több üzlet, vendéglátóhely, valamint különböző tömegközlekedési lehetőségek. A közelben iskola is található, a parkolás a kerületi lakosok számára kijelölt helyeken megoldott.
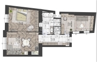
Az ingatlan egy kisebb lakásszámú, csendes társasház 3. emeletén található. A belmagasság közel 4 méter, a helyiségek tágasak, ennek köszönhetően világos és jól szellőző életteret biztosítanak.
A lakásba lépve egy tágas előtérbe lépünk, ahol beépített tárolószekrény található, innen közelíthető meg a nappali, és a gépesített, jól felszerelt konyha. A nappaliból nyílik a nagyobb hálószoba, a kisebb háló az előtérből közelíthető meg, ablakai a belső udvarra néznek. A lakás a folyosó végén helyezkedik el, így az ablakok előtt nincs átmenő forgalom.
A fürdőszobában zuhanyzó, nagyméretű kád, valamint a mosó- és szárítógép számára kialakított falfülke kapott helyet. A Fürdő és a WC külön helyiségben kapott helyet. Az egész lakás ízlésesen berendezett, és nagyon hangulatos, a tulajdonos eredetileg saját részre újította fel.