Eladó Családi ház Dunaharaszti - Új parcellázás

120 m2Alapterület 5 Szoba
150 000 000 Ft Ár
392936Azonosító
További adatok

640 m2 Telek

Kertre néző Kilátás

Új Állapot

Tégla Szerkezet

15 m2 Erkély/terasz

Hőszivattyú Fűtés

Összkomfort Komfort

Saját garázs Parkolás

Közepes Tömegközlekedés

Amerikai konyhás

Van Kertkapcsolat

2026 Építés éve

Hitelkalkuláció – a részletekért kattintson valamelyik bank logójára!

Újépítésű ingatlan Dunaharasztiban!

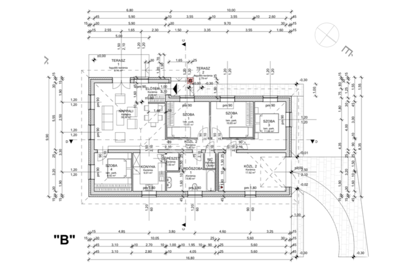
Dunaharaszti új építésű részén, a Bezerédi lakópark szomszédságában, kínálunk megvételre, nettó 120 nm alapterületű önálló családi házat, garázzsal, terasszal, 650 nm-es telken.

A ház belső elosztását igény szerint ön tervezheti meg a kivitelező tervezőjével. A hirdetésben szereplő alaprajz bővíthető, az ingatlan megépíttethető akár 140nm, 150nm alapterületűre.

- 140 nm-es ház vételára: 165.000.000.-Ft
- 150 nm-es ház vételára 173.000.000.-Ft

Műszaki paraméterek:
- Viablokk falazóelem,
- 10 cm-es grafit külső hőszigetelés,
- 25 cm-es födémszigetelés,
- műanyag nyílászárók 3 rétegű üvegezéssel,
- padlófűtés,
- Levegő- hőszivattyú,
- választható homlokzat és cserép szín,
- igény szerint választható burkolatok,
- ház körül 60 cm-es betonjárda,
- kocsibeálló murvázva.

Átadás: szerződéskötéstől számított 8 hónap.
Kezdő önerő 20 %.

Amivel segítjük az Ön ingatlanvásárlását:
- ingyenes hitelügyintézés,
- jogi háttér,
- földhivatali ügyintézés,
- energetikai tanúsítvány,
- a vevő számára az ingatlanközvetítés ingyenes.
Irodánk 30 éves szakmai tapasztalattal áll ügyfelei rendelkezésére!

Várom szíves megkeresését!
Nyári Katalin

Nyári Katalin

Hívjon bizalommal

+36-30-720-Mutasd!

További hirdetéseim

Ingatlaniroda
GDN Ingatlanhálózat - KANKALIN Ingatlaniroda
+36-30-720-3622

Küldjön üzenetet

Visszahívást kérek

Hasonló ingatlanok