Eladó Lakás (téglaépítésű) Budapest V. kerület - Szent István körút

79 m2Alapterület 2 Szoba
105 500 000 Ft Ár
393730Azonosító
További adatok

Udvari Kilátás

Jó állapotú Állapot

Tégla Szerkezet

Gáz (cirkó) Fűtés

Összkomfort Komfort

Utcán, közterületen Parkolás

Emelet 4

Legfelső emelet

Van Lift

Kiváló Tömegközlekedés

Nem Amerikai konyhás

Nincs Kertkapcsolat

1897 Építés éve

Közös költség 25 280 Ft

Keleti Tájolás

Hitelkalkuláció – a részletekért kattintson valamelyik bank logójára!

Világos, csendes lakás a Nagykörút közelében – azonnali hozammal!

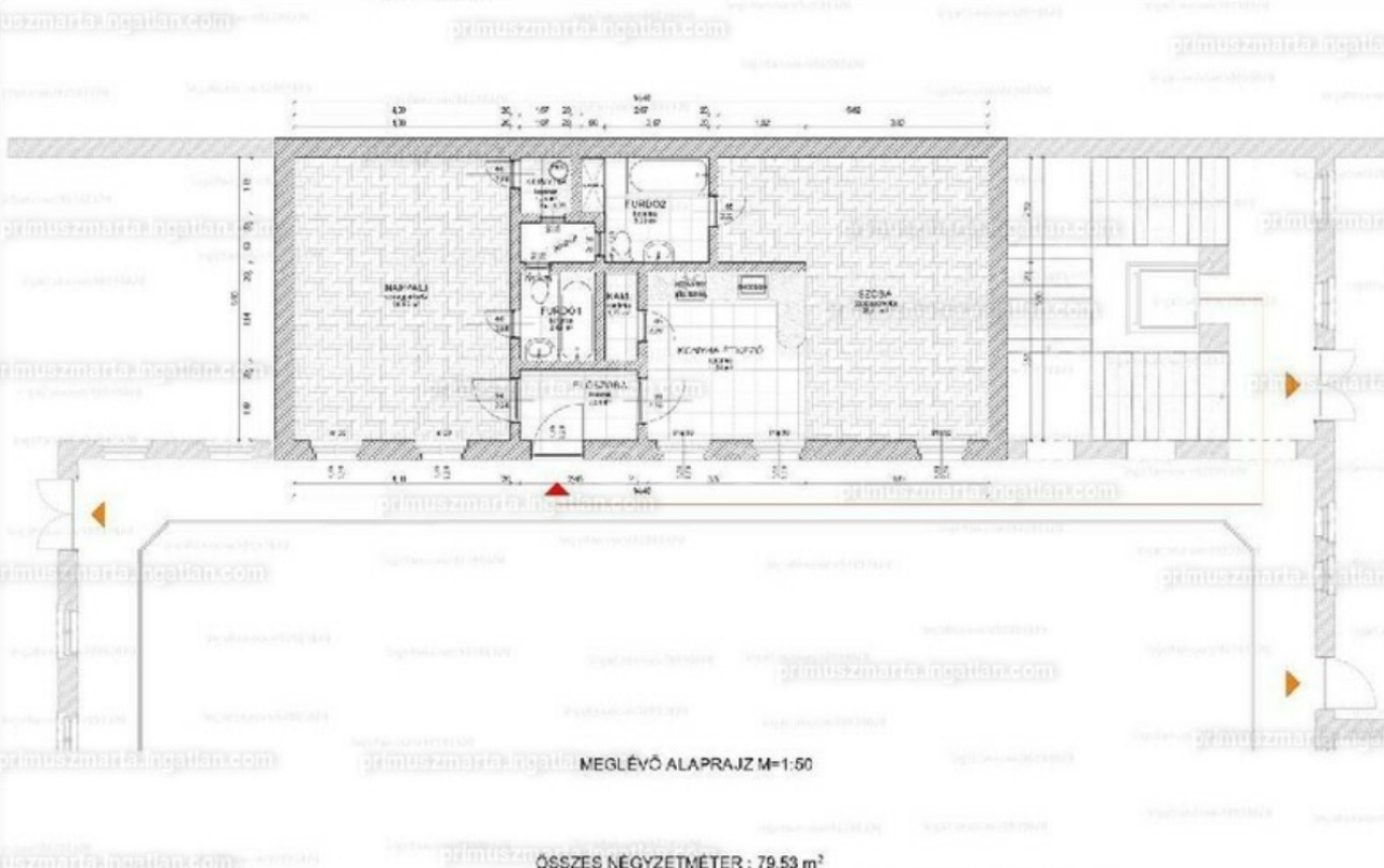
Eladó egy 79 m²-es, udvari, világos ingatlan, amely jelenleg két teljes értékű lakásra osztott, külön bejárattal, így akár bérlőkkel együtt, azonnali hozamot biztosítva.

--- For English, scroll down ----

✅ Lakás – pontos m²-adatok:

Közös előtér: 3,94 m²

1. lakás:

Szoba: 26,66 m²

Fürdőszoba: 2,86 m²

Konyhafülke: 1,24 m²

2. lakás:

Szoba: 26,41 m²

Konyha: 11,56 m²

Fürdőszoba: 6,33 m²

Kamra: 1,27 m²

✅ Kiváló lokáció – a Vígszínház és a Jászai Mari tér között, csendes, világos lakás, a 4. emeleten, ideális befektetésre.

✅ Történelmi és építészeti érték – a házat a Haggenmacher család építtette, terveit Hubert József (1846–1916) készítette. Az épület 1897–1898-ban épült, eklektikus stílusban, négyemeletes, magastetős, belső udvaros bérház.

Utcai homlokzat: héttengelyes, ikerablakokkal a szélső tengelyekben

Zárterkély a II–III. emeleten, kőkonzolokkal, kovácsoltvas korláttal a IV. emeleten

Portál diadalív-motívummal, oroszlánfej díszítéssel

Belső udvar: téglalap alakú, kovácsoltvas korlátos körfolyosó

Híres lakói: Somlay Artúr (1883–1951), Sándor Kálmán (1903–1962)

✅ Gazdaságos üzemeltetés – átlagos rezsi ~20.000 Ft/hó, közös költség 25.280 Ft/hó.

✅ Befektetők álma – azonnal kiadható, hosszú távon értékálló.

Ár: 105,5 millió Ft

✅ Környék és közlekedés:

Közeli látványosságok: Margitsziget, Parlament, Vígszínház

Üzletek, kávézók, éttermek, szórakozási lehetőségek a közelben

Iskolák, óvodák gyalogosan elérhetők

Kiváló közlekedés: villamos- és buszmegállók pár perc sétára, M1/M2 metró a közelben, gyors elérés pályaudvarokhoz és a Belvároshoz

5. kerület, Budapest szívében

--- English ---

✅ Bright, quiet apartment near the Nagykörút – immediate rental income!

For sale: a 79 m², courtyard-facing, bright apartment, currently divided into two fully functional units, each with separate entrances, providing immediate rental income if purchased with tenants.

✅ Flexible layout – exact sizes:

Shared entrance: 3.94 m²

1st apartment:

Room: 26.66 m²

Bathroom: 2.86 m²

Kitchenette: 1.24 m²

2nd apartment:

Room: 26.41 m²

Kitchen: 11.56 m²

Bathroom: 6.33 m²

Pantry: 1.27 m²

✅ Excellent location – between Vígszínház and Jászai Mari Square, quiet and bright, on the 4th floor, ideal for investors.

✅ Historical and architectural value – the building was commissioned by the Haggenmacher family, designed by József Hubert (1846–1916). Built in 1897–1898 in eclectic style, it is a four-story, pitched-roof, courtyard-facing apartment building.

Street façade: seven axes with twin windows on the outer axes

Enclosed balconies on the 2nd–3rd floors, supported by stone consoles, with wrought-iron railings on the 4th floor

Portal with triumphal arch motif and lion head decoration

Inner courtyard: rectangular, surrounded by wrought-iron rail balcony corridors

Famous former residents: Artúr Somlay (1883–1951), Kálmán Sándor (1903–1962)

✅ Cost-effective operation – average utility costs ~20,000 HUF/month, common costs 25,280 HUF/month.

✅ Investor’s dream – immediately rentable, long-term value.

Price: 105.5 million HUF

✅ Neighborhood and transport:

Nearby attractions: Margaret Island, Parliament, Vígszínház

Shops, cafes, restaurants, entertainment options nearby

Schools and kindergartens within walking distance

Excellent transport connections: tram and bus stops just a few minutes away, M1/M2 metro nearby, quick access to train stations and the city center

Located in District V, the heart of Budapest
Nyári Katalin

Nyári Katalin

Hívjon bizalommal

+36-30-720-Mutasd!

További hirdetéseim

Ingatlaniroda
GDN Ingatlanhálózat - KANKALIN Ingatlaniroda
+36-30-720-3622

Küldjön üzenetet

Visszahívást kérek

Hasonló ingatlanok