Eladó Ikerház Veresegyház - Zsellérföldi út

114 m2Alapterület 4 Szoba
145 800 000 Ft Ár
392755Azonosító
További adatok

480 m2 Telek

Kertre néző Kilátás

Építés alatt Állapot

Tégla Szerkezet

19 m2 Erkély/terasz

Hőszivattyú Fűtés

Összkomfort Komfort

Saját garázs Parkolás

Kiváló Tömegközlekedés

Amerikai konyhás

Van Kertkapcsolat

2026 Építés éve

Keleti Tájolás

Hitelkalkuláció – a részletekért kattintson valamelyik bank logójára!

Eladásra kínáljuk egy új építésű projetben, 960 nm-es telken épülő ikerház mindkét felét Veresegyház kertvárosi részén, a Harmatok városrészben, gyönyörű természeti környezetben, aszfaltozott utcában.

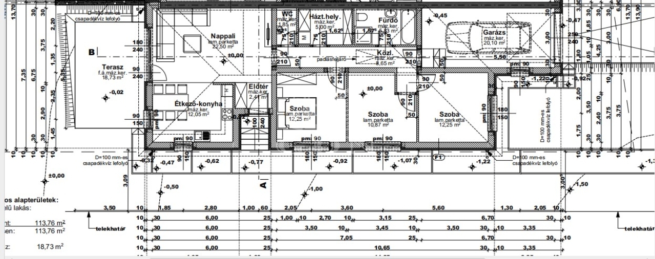
Jelen ikerház fél nettó 114 nm hasznos alapterületű egy szintes épület + 20 nm-es fedett garázs, valamint 19 nm-es terasz.

Az ingatlan 4 szobával rendelkezik és majd' 500 nm-es telekrész tartozik hozzá.

HELYISÉGEK:

Nappali: 22,5 nm
Étkező-konyha: 12 nm
Szoba1: 10,1 nm
Szoba2: 12,25 nm
Szoba3: 12,25 nm
Hátartási helyiség: 5 nm
Fürdő2: 5,9 nm
WC: 1,8 nm
Közlekedő: 8,7 nm
Garázs: 20 nm

MŰSZAKI TARTALOM:

Az épület PTH 30-as falazóelemből, 12cm-es aljzatszigeteléssel, 10cm-es grafitos EPS homlokzati és 25cm-es födém hőszigeteléssel, beton födémmel, Bramac betoncserép fedéssel épül. Korszerű 5-légkamrás műanyag nyílászárók kerülnek beépítésre 3 rétegű üvegezéssel, elektromos redőny előkészítéssel.

A fűtést, hűtést és meleg víz ellátást a legkorszerűbb hőszivattyús rendszer működteti beépített puffertartállyal kiegészítve, padlófűtéses hőleadással, H-tarifás villanyórával. Napelem és riasztó rendszer előkészítést valamint minden szobában klíma kiállást tartalmazza az ár.

KÖRNYEZET:

Veresegyház egyik legszebb városrészében, kertvárosi környezetben épül az ingatlan.
Ajánlom mindenkinek, akik nyugodt, zöldövezeti környezetben szeretnének élni.
Veresegyház rendekezik minden olyan infrastruktúrával, amely a mindennapi élethez elengedhetetlen: iskolák, óvodák, bevásárlási lehetőségek széles választéka, sportcentrumok, színház, egészségügyi központ.
Helyi és kistérségi buszok könnyítik a közlekedést.
Budapest mind tömegközlekedéssel, mind autóval 20-45 perc alatt elérhető.

A beruházó több évtizedes tapasztalattal rendelkező, tőke erős cég, referenciáik a környéken igény esetén megtekinthetőek.

Tervezett átadás. 2026.III. negyedévben.

Ugyanitt az ikerház másik fele is eladó, amely 2 szintes, 5 szobás épület, hasonló műszaki tartalommal, amelynek az irányára: 158 800 000 Ft

Az ingatlanok 10% -al leköthetők!

TÁMOGATOTT ÉS PIACI HITELEKBEN KOLLÉGÁINK OTTHON VANNAK.

EBBEN IS ÁLLUNK VEVŐINK RENDELKEZÉSÉRE.

Várom megtisztelő hívását.

ID:392755
Nyári Katalin

Nyári Katalin

Hívjon bizalommal

+36-30-720-Mutasd!

További hirdetéseim

Ingatlaniroda
GDN Ingatlanhálózat - KANKALIN Ingatlaniroda
+36-30-720-3622

Küldjön üzenetet

Visszahívást kérek

Hasonló ingatlanok