Eladó Családi ház Őrbottyán - Kálvária domb

91 m2Alapterület 4 Szoba
105 500 000 Ft Ár
394058Azonosító
További adatok

360 m2 Telek

Kertre néző Kilátás

Új Állapot

Tégla Szerkezet

16 m2 Erkély/terasz

Hőszivattyú Fűtés

Dupla komfort Komfort

Saját beálló Parkolás

Tömegközlekedés

Amerikai konyhás

Van Kertkapcsolat

2026 Építés éve

Hitelkalkuláció – a részletekért kattintson valamelyik bank logójára!

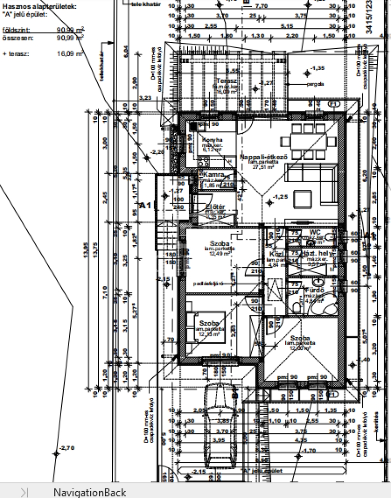
Eladásra kínálunk egy új építésű családi házat Őrbottyánban, a Kálvária dombon.
A ház alapterülete 91 négyzetméter, melyhez egy 360 négyzetméteres kert is tartozik.
A házban összesen 4 szoba található, ideális választás lehet nagyobb családok számára is.
A fűtésről modern hőszivattyús rendszer gondoskodik, ami környezetbarát és gazdaságos megoldás.
A 16 négyzetméteres teraszról gyönyörű kilátás nyílik a kertre, ami kertvárosi hangulatot áraszt.
A környék csendes és nyugodt, tökéletes hely a mindennapi pihenéshez és kikapcsolódáshoz.

Tervezett átadás legkésőbb 2026. augusztus
Hitel, CSOK Plusz, OSP felvehető, állunk rendelkezésére.
ID:391574
Nyári Katalin

Nyári Katalin

Hívjon bizalommal

+36-30-720-Mutasd!

További hirdetéseim

Ingatlaniroda
GDN Ingatlanhálózat - KANKALIN Ingatlaniroda
+36-30-720-3622

Küldjön üzenetet

Visszahívást kérek

Hasonló ingatlanok