Eladó Családi ház Budapest XVIII. kerület - Poprád utca

230 m2Alapterület 3 Szoba
119 800 000 Ft Ár
393578Azonosító
További adatok

433 m2 Telek

Kertre néző Kilátás

Jó állapotú Állapot

Tégla Szerkezet

5 m2 Erkély/terasz

Gáz (cirkó) Fűtés

Összkomfort Komfort

Saját garázs Parkolás

Tömegközlekedés

Nem Amerikai konyhás

Van Kertkapcsolat

1995 Építés éve

Délkeleti Tájolás

Hitelkalkuláció – a részletekért kattintson valamelyik bank logójára!

Eladó háromszintes önálló családi ház 18.kerületben.

Budapest 18.kerület Ferihegy városrészben kínálunk megvételre egy nettó 230 nm-es, háromszintes,téglából épült, önálló családi házat
433 nm-es telken.
A telken található még, egy különálló garázs.
A nyílászárók háromrétegű üvegezésű a jobb hangszigetelés érdekében.
A fűtést gáz cirkó biztosítja radiátoros hőleadással.

Az ingatlan beosztása-
földszint:
- előszoba 7nm,
- nappali 23,1nm,
- konyha 7,5nm,
- étkező 15,9nm,
- kamra 2,3nm,
- fürdőszoba 5,2nm,
- WC 2,2nm,
---------------------------
nettó: 63,2nm

Emelet:
- lépcsőház 5,4nm,
- hall 14,1nm,
- fürdőszoba+WC 3,6nm,
- szoba 23,1nm,
- szoba 11,4nm,
- szoba 11,4nm,
- terasz 5nm,
-----------------------------
nettó:74nm

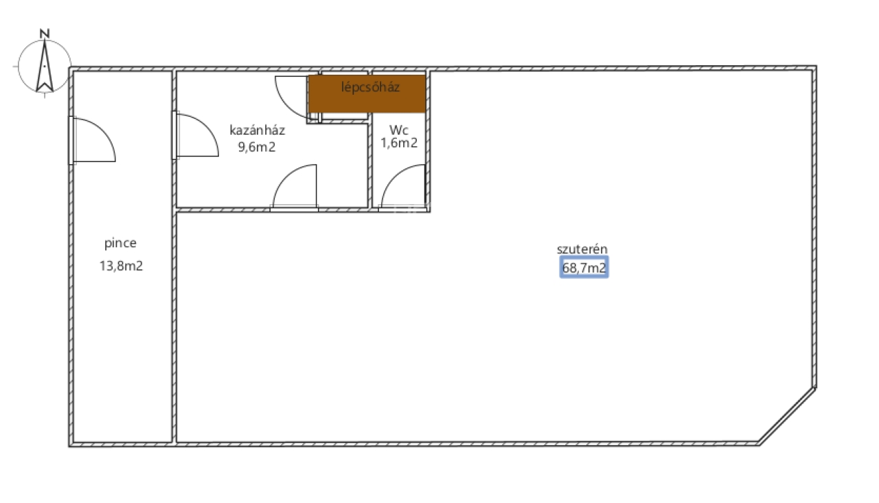
Szuterén:
- kazánház 9,6nm,
- tároló 13,8nm,
- WC,mosdó 1,6nm,
- "dühöngő"szabadidőszoba 68,7nm,
------------------------------
nettó: 93,7nm

Vonat, busz megálló a közelben. Szemere István téri játszótér sétatávolságra található.

Amivel segítjük az Ön ingatlanvásárlását:
- ingyenes hitelügyintézés,
- jogi háttér,
- földhivatali ügyintézés,
- energetikai tanúsítvány,
- a vevő számára az ingatlanközvetítés ingyenes.

Irodánk 30 éves szakmai tapasztalattal áll ügyfelei rendelkezésére!

Várom szíves megkeresését!
Nyári Katalin

Nyári Katalin

Hívjon bizalommal

+36-30-720-Mutasd!

További hirdetéseim

Ingatlaniroda
GDN Ingatlanhálózat - KANKALIN Ingatlaniroda
+36-30-720-3622

Küldjön üzenetet

Visszahívást kérek

Hasonló ingatlanok