Eladó Ikerház Kerepes - Panoráma lakópark

80 m2Alapterület 4 + 1 Szoba
87 000 000 Ft Ár
392881Azonosító
További adatok

350 m2 Telek

Panoráma Kilátás

Építés alatt Állapot

Tégla Szerkezet

31 m2 Erkély/terasz

Gáz (cirkó) Fűtés

Komfort Komfort

Saját beálló Parkolás

Emelet Földszint

Legfelső emelet

Nincs Lift

Tömegközlekedés

Amerikai konyhás

Van Kertkapcsolat

Tetőtéri ingatlan

2025 Építés éve

Délnyugati Tájolás

Hitelkalkuláció – a részletekért kattintson valamelyik bank logójára!

Örökpanoráma. Saját kert. Új otthon.

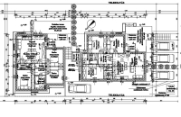
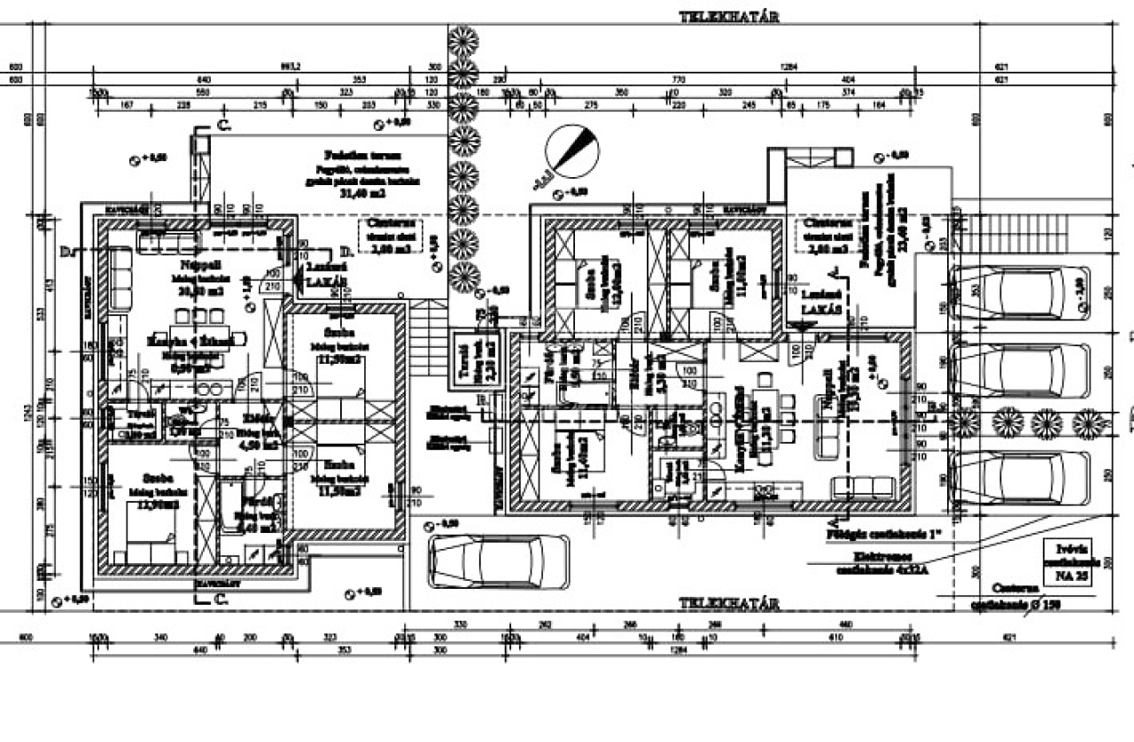
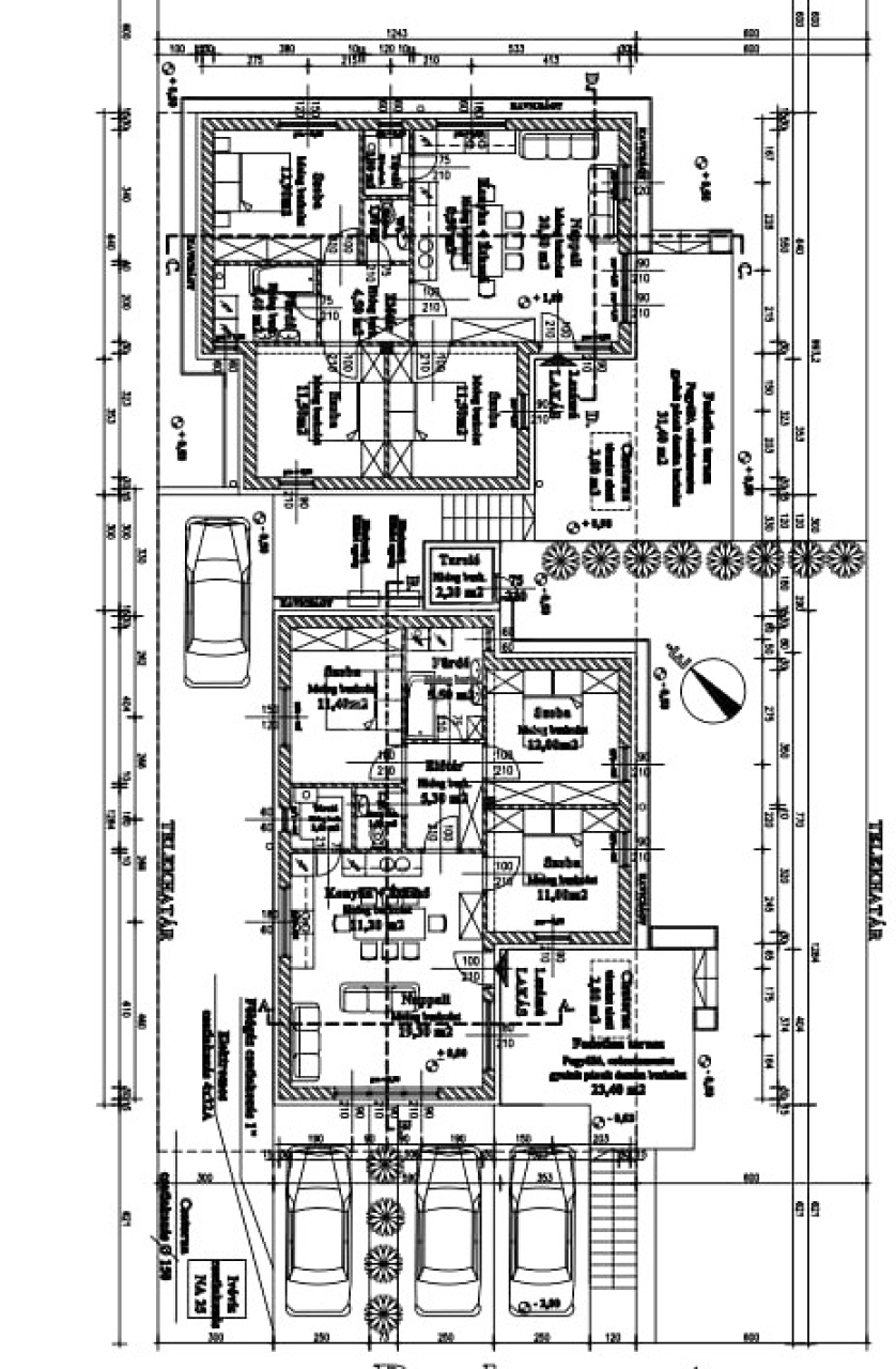
Kerepesen, a Panoráma lakóparkban eladó egy 80 m²-es ikerházfél 31 m² terasszal és 350 m² saját kerttel, kulcsrakész állapotban – most bevezető áron: 87 millió Ft-ért. Az ingatlan a helyi moratórium miatt 2027 tavaszáig nem kap csatornázási csatlakozási lehetóséget. Megoldást adhat fúrt kút és szikkasztó használata, ezzel a hitelre is képes lehet. Az ikerházfél akár egyben is megvásárolható a másik féllel!

A ház örökpanorámás, csendes zöldövezetben található, mégis csak 15 perc autóval a belvárostól. A közcsatornázás 2027 eleji moratórium feloldásig fúrt kúttal és szikkasztóval megoldott, így a mindennapi használat biztosított. A képek látványtervek, az építkezés folytatása az új tulajdonos bevonásával történik.

– Hőszigetelt falak és nyílászárók → alacsony fűtési költség
– Padlófűtés → modern kényelem
– Klímacsövezés előkészítve → bármikor beszerelhető
– Teljes gépészet → gyors beköltözés
– Minőségi burkolatok és belső ajtók → elegáns alapok
– Öntözőrendszer előkészítve → könnyű kertépítés

Ritka lehetőség: modern otthon panorámával és kerttel, most bevezető áron elérhető. Ez az ikerház fél nem csupán egy otthon, hanem önálló életstílus és biztos befektetés: örökpanoráma, kertkapcsolat, Akár államilag támogatott finanszírozás.
Nyári Katalin

Nyári Katalin

Hívjon bizalommal

+36-30-720-Mutasd!

További hirdetéseim

Ingatlaniroda
GDN Ingatlanhálózat - KANKALIN Ingatlaniroda
+36-30-720-3622

Küldjön üzenetet

Visszahívást kérek

Hasonló ingatlanok