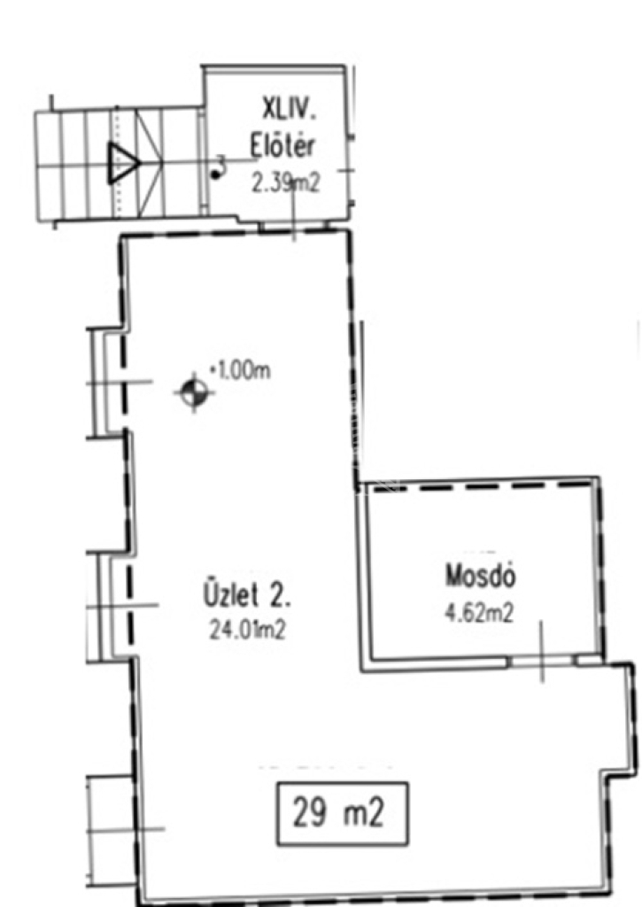
Eladó Üzlethelyiség Budapest XIII. kerület - Váci út

29 m2Alapterület 0 Szoba
60 899 990 Ft Ár
382638Azonosító
További adatok

Utcai Kilátás

Új Állapot

Tégla Szerkezet

Elektromos Fűtés

Utcán, közterületen Parkolás

Kiváló Tömegközlekedés

2023 Építés éve

Nyugati Tájolás

BUDAPEST XIII. kerületben, a DUNA PLÁZA közelében, 51 lakásos, liftes, téglaépítésű társasházban, utcai bejáratú, földszinten elhelyezkedő, 29 m2 alapterületű üzlethelyiség ELADÓ.
A 2 emeletes 51 lakásos, liftes, téglaépítésű társasház a századfordulón épült, melynek teljes átépítése, felújítása történt és kapta meg jelenlegi arculatát. A fűtésről, meleg víz ellátásról elektromos cirkó gondoskodik, radiátor hő leadóval és hűtő-fűtő klíma is beszerelésre került. Az épület energetikai besorolása „B”.

Átadás: 2025. II. negyedév

Az épület biztonságáról 24 órás portaszolgálat gondoskodik. Gépjárművek parkolására a ház előtti kialakított parkolóban van lehetőség.
Az üzlethelyiséget tekintve, a lakók érdekeit szem előtt tartva, a tervek szerint nem vendéglátó egység létesítése a cél, amely esetleg a lakók nyugalmát és biztonságát zavarná.

A folyamatosan fejlődő városrészben a lokáció és a közlekedés kiváló. Közelben a Duna Pláza, Tesco bevásárlóközpont.
Hívjon bizalommal, ha az ajánlat felkeltette érdeklődését.
Bajnóczi Beáta
GDN Region Ingatlan
Nyári Katalin

Nyári Katalin

Hívjon bizalommal

+36-30-720-Mutasd!

További hirdetéseim

Ingatlaniroda
GDN Ingatlanhálózat - KANKALIN Ingatlaniroda
+36-30-720-3622

Küldjön üzenetet

Visszahívást kérek

Hasonló ingatlanok