Eladó Családi ház Székesfehérvár - Belváros közelében

147 m2Alapterület 5 Szoba
124 900 000 Ft Ár
385075Azonosító
További adatok

400 m2 Telek

Kertre néző Kilátás

Felújított Állapot

Tégla Szerkezet

30 m2 Erkély/terasz

Gáz (cirkó) Fűtés

Dupla komfort Komfort

Saját beálló Parkolás

Kiváló Tömegközlekedés

Amerikai konyhás

Van Kertkapcsolat

2006 Építés éve

Hitelkalkuláció – a részletekért kattintson valamelyik bank logójára!

Árcsökkenés!!!

Sürgősen eladó, gyors döntés esetén kedvezmény!

Ne hagyja ki ezt az egyedi lehetőséget – éljen a belváros közelében, mégis nyugodt környezetben!

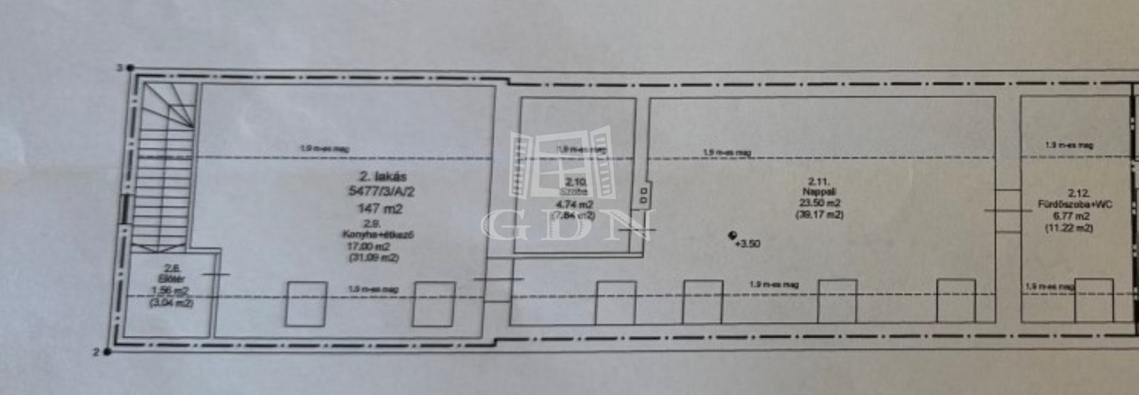
H-004516. A Történelmi Belváros szomszédságában, 815 m²-es, összközműves, parkosított telken található, kétlakásos, egyedi kialakítású ikerház belső lakása eladó!

A ház a Belváros szélén, az egyik legkedveltebb, csendes utcában helyezkedik el, a telek hátsó, belső részén, távolabb az utcafront zajától. Az ingatlan 2008-ban épült Porotherm téglából, korszerű anyagok felhasználásával, gondos kivitelezéssel. A két lakás között hivatalos használati megosztás és társasházi alapító okirat készült, amely biztosítja a külön kertrészek és közös részek zavartalan használatát.

A most eladásra kínált belső lakás hasznos alapterülete összesen 147 m², és két különálló, de akár egybenyitható lakrészt tartalmaz:
• Földszinti lakás (93 m²): rusztikus hangulatú, előszoba, konyha-étkező, tágas, világos nappali (35 m²), hálószoba, fürdő (zuhanyzós), külön WC, háztartási helyiség. Hangulatos, látszógerendás mennyezet és cserépkályha teszi különlegessé.
• Tetőtéri lakás (54 m²): modern, fiatalos stílusban kialakított, előtér, konyha-étkező, nappali, két hálószoba, fürdőszoba WC-vel. Klimatizált, inverteres (7 kW és 3,5 kW) hűtő-fűtő klímákkal felszerelve.
A ház fűtését és melegvíz-ellátását gázkazán biztosítja: radiátoros hőleadással. 2024-ben teljes műszaki felújításon esett át: megújult a víz-, csatorna- és villamosrendszer is. Igazi ritkaságnak, kuriózumnak számít még a földszinti lakásban nappali és a konyha-étkezőben lévő látszógerendás megoldás, valamint a nappaliban található gyönyörű cserépkályha.
A nyílászárók modern új, egyedi kivitelezésűek.

A lakáshoz tartozik továbbá:
• 30 m²-es fedett terasz
• 19 m²-es közös tárolóhelyiség
• Saját, körülbelül 400 m²-es, parkosított kertrész, tele örökzöldekkel, dísznövényekkel

Elektromos autó töltő kiépítésre került.

Az ingatlan nemcsak lakhatásra, hanem kiválóan alkalmas vendégház, apartman vagy üdülő funkcióra is. A közelben belváros, iskola, óvoda, üzletek megtalálhatóak.
Tömegközlekedéssel is könnyen megközelíthető



Eladási irányár: 124,9 M Ft

Ha felkeltette érdeklődését, hívja irodánkat bizalommal, éljen ingyenes, személyre szabott hitelügyintézés szolgáltatásunkkal. Segítünk továbbá adásvételhez szükséges ügyvédi közreműködésben, energetikai tanúsítvány, valamint értékbecslés elkészítésében.

For English details please send us a message or an e-mail, thank you.
Nyári Katalin

Nyári Katalin

Hívjon bizalommal

+36-30-720-Mutasd!

További hirdetéseim

Ingatlaniroda
GDN Ingatlanhálózat - KANKALIN Ingatlaniroda
+36-30-720-3622

Küldjön üzenetet

Visszahívást kérek

Hasonló ingatlanok